3 pokoje, 250 metrów do Fontanny Neptuna!

lokalizacja: Gdańsk, Ogarna

899 000,00 PLN

17 696,85 PLN

Opis nieruchomości

Z przyjemnością oferuję do sprzedaży kompaktowe mieszkanie w odrestaurowanej kamienicy, położone w samym sercu Gdańska przy ulicy Ogarnej.

Oferta dostępna wyłącznie w naszym biurze.

Opis nieruchomości:
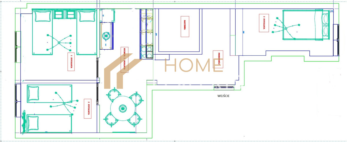
2 piętro, 3 pokoje, osobna kuchnia z jadalnią, łazienka z prysznicem, okna wychodzące na południe i północ, z widokiem na klimatyczną architekturę historycznej części miasta.

Zabezpieczenia: drzwi antywłamaniowe, domofon.
Wyposażenie oferowane w cenie: do uzgodnienia.

Do lokalu przynależy: piwnica

Opis budynku:
Czteropiętrowa, zadbana kamienica oddana do użytku w 1956 roku.

Opis lokalizacji:
Komunikacja: prywatne linie autobusowe, PKS, linie tramwajowe, linie autobusowe podmiejskie, linie autobusowe miejskie, Szybka Kolej Miejska, pociągi dalekobieżne.

Odległość od centrum Gdańska: około 0,1 km.

Rekreacja: basen, fitness, kręgielnia, obiekt sportowy, plac zabaw dla dzieci, rower miejski, rzeka, siłownia, ścieżka rowerowa.

Usługi: apteka, bank, centrum handlowe Forum, Madison, cukiernia, delikatesy, fryzjer, kwiaciarnia, piekarnia, pralnia, przychodnia, liczne restauracje i kawiarnie, salon kosmetyczny, stomatolog.

Instytucje: biblioteka, kościół, poczta, Policja, przedszkole, Straż Miejska, szkoła średnia, uczelnie wyższe, Akademia Sztuk Pięknych, Teatr Szekspirowski.

Dostępne media: woda zimna, woda ciepła, TV kablowa, prąd, kanalizacja, internet, gaz ziemny.
Ogrzewanie: miejskie. Czynsz: 600zł

Serdecznie zapraszam na prezentację.

Plan Nieruchomości

Kontakt do opiekuna:

Home Experts

Kamil Królikowski
Nieprawidłowy adres E-mail
Mapa

Strona korzysta z plików cookie w celu realizacji usług zgodnie z Polityką prywatności. Możesz określić warunki przechowywania lub dostępu do cookie w Twojej przeglądarce.