2-poziomowe/110m po podłodze/Parking w cenie!

lokalizacja: Gdańsk, Jednorożca

879 000,00 PLN

11 371,28 PLN

Opis nieruchomości

Mam Państwu do zaoferowania przestronne i ustawne, dwupoziomowe mieszkanie 4-pokojowe znajdujące się w samym centrum urokliwej i tętniącej życiem dzielnicy Gdańsk Osowa

Mieszkanie o powierzchni użytkowej 77,3m2 składa się z:
- przestronnego słonecznego salonu z aneksem kuchennym 
- sypialni 
- sypialni 
- przedpokoju z dużą szafą 
- łazienki z WC
- WC
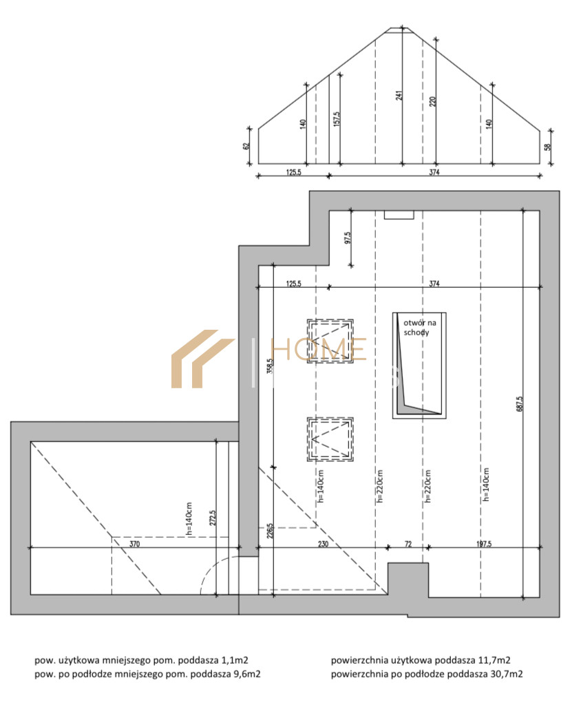
- użytkowego poddasza 
- dodatkowego pomieszczenia na poddaszu
- balkonu 

Powierzchnia całkowita mieszkania to 110 m2 !!!

Powierzchnia całkowita poddasza wraz z dodatkowym pomieszczeniem to 40,3 m2 (użytkowa 12,8 m2) !!!

Mieszkanie jest dwustronne. Ekspozycja okien na stronę północną oraz południową (od strony salonu).

Do mieszkania przynależą 2 naziemne miejsca parkingowe oraz piwnica (10,8m2), wliczone w cenę nieruchomości !!!

Wszystkie zabudowy oraz meble widoczne na zdjęciach pozostają do użytku nowych właścicieli. 

Opłaty eksploatacyjne na bardzo korzystnym poziomie cenowym.

Budynek z 1998 roku wykonany z najwyższej jakości materiałów, wejście zabezpieczone domofonem, klatki schodowe zadbane i czyste. Przed budynkiem znajdują się miejsca parkingowe naziemne.

Pod budynkiem znajduje się ogólnodostepny dla jego mieszkańców ogród wraz z placem zabaw dla dzieci.

Nieruchomość znajduje się w spokojnej okolicy, jest bardzo dobrze skomunikowana, w kilka minut można się dostać autem do obwodnicy Trójmiasta.  W odległości kilkudziesięciu metrów znajduje się przystanek autobusowy, kilkaset metrów dalej - przystanek PKM. W pobliżu mieszczą się szkoła, przedszkole, żłobek, Kościół, restauracje, przychodnie zdrowia, liczne sklepy oraz niezbędne lokale usługowe.

Pomagamy w uzyskaniu kredytu hipotecznego.

Serdecznie polecam i zapraszam na prezentację.

Niniejsze ogłoszenie służy wyłącznie celom informacyjnym i nie stanowi oferty handlowej w rozumieniu przepisów Kodeksu Cywilnego.

Kontakt do opiekuna:

Home Experts

Wojciech Uzar
Nieprawidłowy adres E-mail
Mapa

Strona korzysta z plików cookie w celu realizacji usług zgodnie z Polityką prywatności. Możesz określić warunki przechowywania lub dostępu do cookie w Twojej przeglądarce.